Centrum Symulatorów Promów i Offshore
miejsce: Szczecin, ul. Jarowita
data: projekt: 2023 realizacja: 2024-25
klient: Politechnika Morska w Szczecinie
status / zakres: zrealizowany / projekt koncepcyjny
współpraca: dr inż. arch. Jakub Gołębiewski
makieta: Paula Krupa
projekt arch-bud, techniczny i wykonawczy: Akint
uwagi: Pierwszy w Szczecinie obiekt z elewacją prefabrykowaną z betonu barwionego w masie. Kolor i materiał elewacji, wraz z jego teksturą, zostały dobrane tak, aby nowy obiekt harmonijnie wpisał się w zabytkowe otoczenie budynków z cegły, o dachach ceramicznych. Niestety, w realizacji nie wykorzystano oryginalnych wytycznych i propozycji dotyczących wnętrza i otoczenia budynku. Wykończenia wnętrz, materiały, oprawy oświetleniowe i kolory wybrano bez konsultacji z autorami koncepcji.
publikacje: Relacja z budowy – Architektura Murator 08/2025












Toaleta publiczna w ogrodzie Pałacu Zamoyskiego / siedziby SARP
miejsce: Warszwa, ul. Foksal 2-4
data: 2023
klient: Geberit Polska / Koło
status: koncepcja na konkurs „Projekt Łazienki 2023” edycja 25, wyróżnienie I stopnia
współpraca: M. Puchała
uwagi: ’Pomysł na toaletę urzekł jury swoją prostotą i niewątpliwymi walorami estetycznymi. Projekt jako jeden z nielicznych, idealnie wpisał się w krajobraz parkowy Pałacu Zamoyskiego, sprytnie mijając istniejące drzewa i tworząc bardzo elegancki, falujący parawan. W meandrach kryją się toalety o różnym programie, mniej i bardziej przestronne. Mogą tworzyć ciąg lub tworzyć pętle zamknięte. Rzut zachwyca organicznym kształtem, przypomina amebę, poruszającą się za pomocą wysuwanych nibynóżek. Redukcja funkcji toalety do minimum sprawia, że można ją szybko postawić na placu miejskim, w ogrodzie czy na lokalnym festynie, tworząc zupełnie inną jakość estetyczną toalet przenośnych. Sprytnie wymyślona falująca ściana tworzy bardzo stabilny system konstrukcyjny. Rozwiązania zastosowane w projekcie są proste technologicznie i ekonomiczne. (…) toaleta jest konceptem wartym dopracowania i rozwinięcia, czego szczerze życzymy autorowi/autorom. Idea, mogłaby się sprawdzić w świecie rzeczywistym, wymaga jednak dopracowania wielu szczegółów. Przyznając nagrodę jury chciało docenić odwagę, pomysłowość oraz innowacyjne podejście do tematu.’ fragment opinii jury





Kamienica mieszkalna z usługami w parterze
miejsce: Łódź
data: 2017
klient: Miasto Łódź
status: koncepcja na konkurs „Współczesna kamienica łódzka” edycja 2, nagroda Architekta Miasta Łodzi
uwagi: opinia sądu konkursowego:
Za twórcze podejście do zadanego tematu konkursowego i trafne zinterpretowanie historycznej architektury. Zaproponowane rozwiązania architektoniczno-plastyczne ściśle odnoszą się do ważnego okresu w architekturze, czyli modernizmu lat 20. i 30. Ponadto praca otrzymała wyróżnienie za uwzględnienie klasycznych zasad kształtowania fasad, świadome kształtowanie przestrzeni parteru pod lokale usługowe, ciekawie rozwiązane przestrzenie mieszkalne, a także za interesujące zwieńczenie dwóch pierzei ulic Sienkiewicza i Orlej.






Współczesna Kamienica Łódzka edycja 3
współpraca: M. Puchała
miejsce: Łódź, ul. Zachodnia, ul. Więckowskiego
data: 2023
klient: Urząd Miasta Łodzi
status: projekt konkursowy, III nagroda
uwagi: ’ [nagroda za] Propozycję architektury kamienicy opartej o konsekwentne zastosowanie rytmu podziałów formy i elewacji budynku, z wykorzystaniem układu galeriowego pozwalającego na stworzenie dużych, obustronnie doświetlonych mieszkań, stanowiących rzeczywistą alternatywę dla wielorodzinnej zabudowy obrzeży miasta. Zaproponowana głębokość traktu budynku pozwoliła, także poprzez rytm przerw w kubaturze, na dobre doświetlenie dziedzińca, którego wizerunek nadany został przez pasy galerii charakterystycznych dla historycznej zabudowy mieszkaniowej północnej części śródmieścia Łodzi. Pasy elewacji frontowych, podkreślone rytmem balkonów, nadały budynkowi wyrazisty charakter, stwarzający czytelny wizerunek zabudowy i skrzyżowania śródmiejskich ulic. ’ opinia jury




Przebudowa Teatru Letniego im. Heleny Majdaniec
współpraca: A. Kobyłka, S. Bielenis
miejsce: Szczecin, Park Kasprowicza
data: 2015
klient: Miasto Szczecin
status: projekt wyróżniony w konkursie międzynarodowym
uwagi: 'Wyróżnienie dla pracy (…) przyznano za twórczy i oryginalny głos w dyskusji o istocie amfiteatru jako takiego i konieczności bądź nie zadaszania takiego obiektu. Sąd Konkursowy zwrócił również uwagę na zastosowane szczególnie na I etapie konkursu nowatorskie podejście do zagadnienia mobilności w architekturze.’













Projekt biurowca z cegły i betonu
miejsce: Szczecin / Amsterdam
data: 2019-21
klient:
status: projekt studyjny



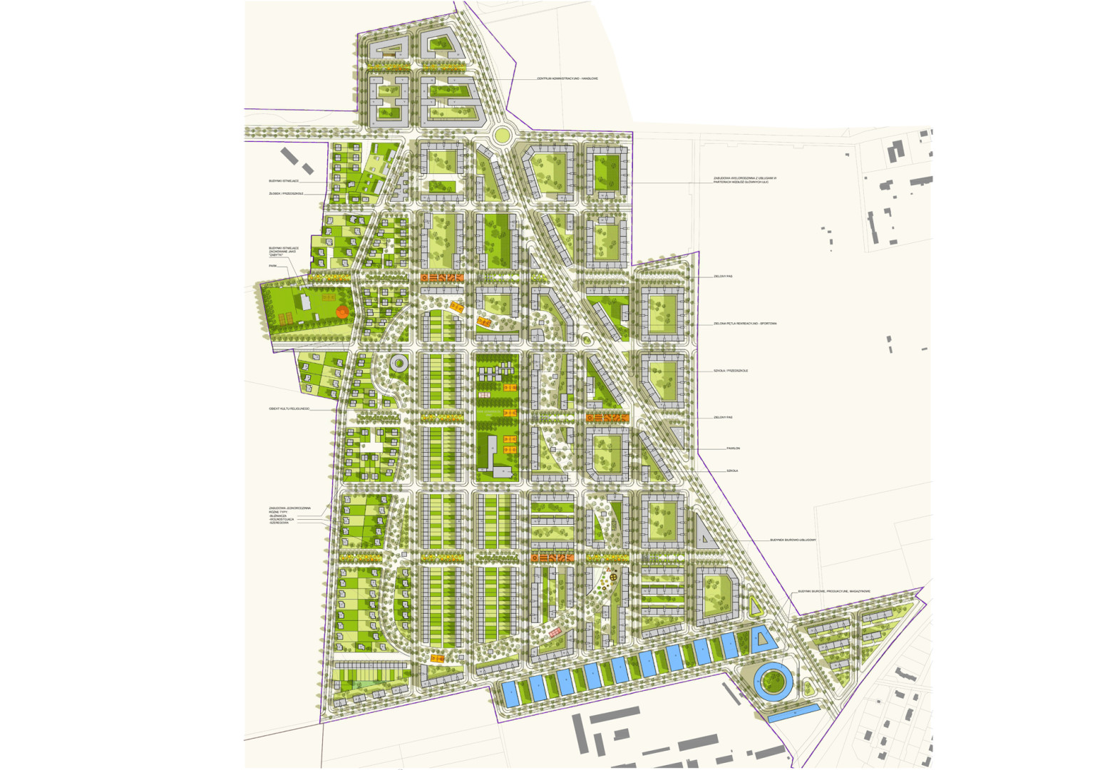
Zagospodarowanie terenu Śródodrza / Łasztowni
współpraca: J.Gołębiewski, A.Pukalski, A.Kmieć, M.Modzelewski, P.Matacz
miejsce: Szczecin
data: 2017
klient: Miasto Szczecin
status: koncepcja / wizja urbanistyczno-architektoniczna / projekt wyróżniony w konkursie międzynarodowym
uwagi: 'Praca otrzymuje wyróżnienie za niezwykle inspirującą ideę wzniesienia na wyspach śródodrza EKODZIELNICY. Idea ta będzie mogła być mocnym impulsem rozwojowym dla inwestowania i stabilnego rozwoju rejonu Łasztowni. Połączenie tej idei z zawartym w pracy pomysłem ekonomicznego koła zamachowego dla inwestowania w postaci ulg dla firm innowacyjnych oraz artystów lokujących swe działalności na wyspach śródodrza, stwarza realną szansę nie tylko na zaistnienie trwałego trendu inwestycyjnego na tym terenie, ale i na powstanie oryginalnej dzielnicy. Będzie ona modelowym przykładem dzielnicy ekologicznej funkcjonującej w modelu zrównoważonego rozwoju, która stać się może zarówno kolejną atrakcją turystyczną Szczecina, jak i poligonem badawczym. Jednocześnie „zaludniona” osobami kreatywnymi będzie połączeniem swego rodzaju lokalnej „doliny krzemowej” i dzielnicy artystycznej bohemy o niegasnącym potencjale.’









Plac Piłsudskiego
współpraca: Z. Sprogis, S.Bielenis
miejsce: Wrocław
data: 2013
klient: Miasto Wrocław
status: 3 nagroda w konkursie ogólnopolskim
uwagi: 'pracę jury doceniło za wykorzystanie możliwości tkwiących we współczesnej technice i technologii dla stworzenia wnętrza o charakterze zmieniającym się stosownie do pór roku i potrzeb użytkowników.’

















Zagospodarowanie fragmentu alei Papieża JPII między placem Lotników i placem Żołnierza Polskiego
miejsce: Szczecin
data: 2011
klient: Miasto Szczecin
status: projekt konkursowy / wyróżnienie
współpraca z: M. Małolepszy
uwagi: 'Praca (…) otrzymała wyróżnienie za interesującą propozycję wprowadzenia zabudowy kubaturowej do wnętrza promenady al. Papieża Jana Pawła II w sposób nie zakłócający otwartości tej przestrzeni oraz stworzenie atraktora zwiększającego intensywność jej wykorzystania. Podjęto ciekawą próbę łączenia „dwóch światów”: harmonijnej i ustabilizowanej kompozycyjnie al. Papieża Jana Pawła II oraz zdominowanego przez chaos rejonu pl. Żołnierza Polskiego stosując dynamiczne formy, przejawiające się zarówno w rozrzeźbieniu brył budynków jaki i zagłębieniu bądź wypiętrzeniu powierzchni promenady.’


Osiedle Giżynek
współpraca: S.Bielenis
miejsce: Stargard Szczeciński
data: 2014
klient: Miasto Stargard
status: wyróżnienie równorzędne w konkursie ogólnopolskim
uwagi: 'Praca wyróżniona za dojrzałą i spójną propozycję ukształtowania osiedla w oparciu o ortogonalną siatkę ulic tworzącą konsekwentny kwartałowy układ całego założenia. Zasadza się on w czytelnej zwartej kompozycji przestrzennej. Sąd docenił trafny wybór skali podziałów kwartałowych, adekwatnej do skali miasta.’ fragment opinii sądu konkursowego










Makieta Starego Miasta Rawicza
współpraca: artysta rzeźbiarz dr Mikołaj Jerczyński
miejsce: Rawicz
data: konkurs grudzień 2020, realizacja grudzień 2021
klient: Gmina Rawicz
status: pierwsza nagroda w konkursie + zaproszenie do negocjacji
uwagi: makieta miasta wykonana, jako odlew z brązu została ustawiona na postumencie na rynku w Rawiczu obok ratusza miejskiego.
wykonanie odlewu: Garstka Studio, wykonanie matryc tekstu oraz Braille’a: FlexPRO, tłumaczenie tekstu na język Braille’a: Dagmara Szymkowiak, wydruk 3D makiety: Dominik Grzyb.













Karty do gry Architektura w Szczecinie
miejsce: Szczecin
data: 2014-2016
klient:
status: projekt zrealizowany
nagrody: projekt nagrodzny marką „ZROBIONE W SZCZECINIE”, projekt nagrodzony nagrodą architektoniczną Prezydenta Szczecina ARCH PRO, za popularyzowanie wiedzy o architekturze Szczecina;
więcej: http://architektura-w-szczecinie.blogspot.com/2017/08/karty-architektura-w-szczecinie.html








Miejska Biblioteka Publiczna
współpraca: A. Kobyłka, K. Kołaczko, M. Kolińska
miejsce: Szczecin
data: 2018
klient: mbp Szczecin
status: koncepcja konkursowa












Centrum Aktywności Lokalnej
współpraca z: A. Górski, M. Strzelczuk
miejsce: Szczecin Podjuchy
data: 2017
klient: Miasto Szczecin
status: projekt konkursowy

















Plac Orła Białego
współpraca: K.Wirkus
miejsce: Szczecin
data: 2018-19
klient: Miasto Szczecin
status: propozycja konkursowa
prezentacja multimedialna: https://www.youtube.com/watch?v=tzg9J52ltzg&t=12s



















Kościół na osiedlu Nowe Żerniki
miejsce: Wrocław, Nowe Żerniki
data: 2016
klient: Miasto Wrocław
status: projekt konkursowy
więcej o projekcie: http://architektura-w-szczecinie.blogspot.com/2020/07/projekt-konkursowy-koscioa-na-osiedlu.html
opis:
Bryła kościoła zamyka podłużny, prostokątny teren zielony i jest częścią pasma edukacyjno – kulturalno – rekreacyjnego. Projekt odnosi się do kościołów św. Józefa w Zabrzu, D. Bohma oraz św. Rodziny w Szczecinie, A. Thesmachera. Powstała wizja ciężkiego, kubicznego kościoła z cegły klinkierowej z wnętrzem określonym przez konstrukcję oraz światło wpadające przez okulus nad ołtarzem; nawę otaczają wieże; w ich dolnych częściach znajdują się kaplice o różnych kształtach przestrzeni (różne plany oraz sklepienia) – jest ich 12, jak apostołów lub miesięcy w roku. Wejście do kościoła poprzedza niewielki dziedziniec wejściowy z ażurową ścianą, z trójkątnymi otworami. Z boku do kościoła przylega ogrodzony ceglanym murem ‘hortus conclusus’, czyli zamknięty ogród „czterech pór roku”, z tyłu kościoła jest kolejny dziedziniec i budynek plebanii. Projekt jest nasycony symboliką ale utrzymany w abstrakcyjnym, geometrycznym języku.





Muzeum Wyspiańskiego
miejsce: Kraków
data: 2019
klient: Muzeum Narodowe w Krakowie
współpraca: J. Gołębiewski, M. Modzelewski, , P. Matacz
status: koncepcja konkursowa


miejsce: Łódź
data: 2018
klient: Urząd Miasta Łodzi
status: koncepcja konkursowa


Hala Sportowa przy szkole podstawowej
miejsce: Warszawa, Praga-Północ
data: 2018
klient: Urząd Dzielnicy Praga-Północ
status: koncepcja konkursowa









Muzeum Książąt Lubomirskich
współpraca: M.Modzelewski
miejsce: Wrocław
data: 2018
klient: Ossolineum / Wrocław
status: koncepcja konkursowa




Przebudowa mieszkania w kamienicy
miejsce: Szczecin
data: 2017
klient: prywatny
status: zrealizowana
zakres: zmiana lokalizacj kuchni i łazienki, wyburzenie ściany, wstawienie podciągu, zamurowania otworów, renowacja podłóg, wymiana okien i drzwi;


Zagospodarowanie fragmentu Alei Jana Pawła II
miejsce: Szczecin
data: 2017
klient: Miasto Szczecin
status: projekt konkursowy
współpraca: M. Piskała, A. Górski



Nowe centrum Rokietnicy, wariant 3
współpraca: Armageddon / R. Barełkowski; A. Kobyłka
miejsce: Rokietnica
data: 2015
klient: gmina Rokietnica
status: projekt koncepcyjny







Plac Zwycięstwa
współpraca: S.Bielenis, M.Boderek
miejsce: Słupsk
data: 2015
klient: Miasto Słupsk
status: projekt konkursowy













Panteon-Mauzoleum Ofiar Zbrodni Komunistycznych na Cmentarzu Wojskowym, na Powązkach
współpraca: S.Bielenis, J.Borek
miejsce: Warszawa
data: 2015
klient: Rada Ochrony Pamięci Walk i Męczeństwa
status: projekt konkursowy





Plac Wolności
współpraca: S.Bielenis, P. Kulesza, K. Sobczak
miejsce: Nowogard
data: 2013
klient: Miasto Nowogard
status: projekt konkursowy







Grzebowisko dla zwierząt domowych
miejsce: Szczecin
data: 2012
klient: Miasto Szczecin
status: projekt konkursowy



Przebudowa mieszkania w kamienicy z lat 30-tych XX wieku
miejsce: Szczecin
data: 2014
klient: prywatny
status: zrealizowany
wnętrza: A.Kobyłka
zakres: poszerzenie otworów drzwiowych / wstawienie nadproży, powiększenie okien balkonowych; zabudowa balkonu od podwórza, zamurowania otworów, renowacja stropów drewnianych (usunięcie polepy, wzmocnienie belek, ułożenie nowej izolacji), wymiana stolarki okiennej i drzwiowej, instalacja wentylacji mechanicznej;








Zabudowa ściany w mieszkaniu w domu z lat 30-tych XX wieku
miejsce: Szczecin
data: 2020
klient: prywatny
status: zrealizowany
współpraca: A. Kobyłka
„jak rozwiązać problem dużej ilości książek w niedużym mieszkaniu w 3 krokach:
1 wybierz najdłuższą ścianę w mieszkaniu
2 zbuduj regał na całą długość i wysokość tej ściany
3 ustaw tam wszystkie książki
twoje rozwiązanie to ściana książek”



Wnętrze klubu w piwnicy 13 muz
miejsce: Szczecin
data: 2012
klient: soso
status: projekt konkursowy






miejsce: Szczecin
data: 2007
klient: Fundacja Animatica
status: projekt konkursowy












s.lab architektura tomasz sachanowicz
t: 601 430 414 @: tomasz.sachanowicz@gmail.com
ul. Wielkopolska 37/9, 70-450 Szczecin | pracownia: ul. T. Lenartowicza 3-4 / 6, 71-445 Szczecin
architekt szczecin * architekt zachodniopomorskie * architekt police * architekt stargard * architekt gryfino * architekt goleniów * architekt świnoujście * architekt kamień pomorski * architekt wisełka * architekt międzyzdroje * architekt dobra * architekt bezrzecze * architekt mierzyn * projekt domu szczecin * projekty domów szczecin * projekty domow